" /> ">
article introduces 重慶展廳裝修設計_重慶展廳裝修公司_重慶展廳裝修效果圖

service phone +86-023-65359372

展廳裝修設計案列,企業展廳設計效果圖

時間:2025-03-10 瀏覽次數:    發布者:admin

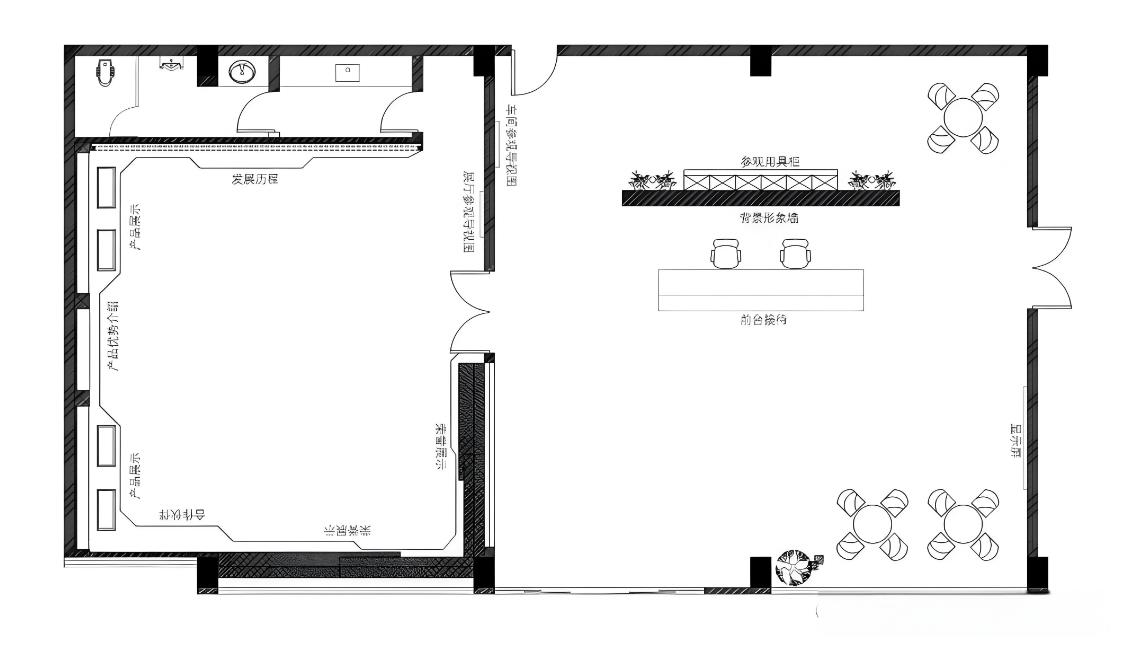
平面布局圖

 
企業展廳設計平面布局圖
 
這張企業展廳平面布局圖功能劃分清晰,入口處是前臺接待區,方便迎接訪客。左側有序分布著產品展示、產品優勢介紹、發展歷程以及榮譽展示區域,全方位呈現企業信息。右側設有洽談桌椅,供交流使用,還貼心配備衛生間。整體布局合理,既滿足展示需求,又注重參觀者體驗。
 
室內設計圖
 
企業展廳設計效果圖
 
企業展廳以米白與木棕為主色調,盡顯大氣專業。前臺處醒目的企業標識墻,強化品牌印象。特色展示墻結合世界地圖與獎杯陳列,彰顯國際化格局與企業實力。大面積落地窗引入自然光與室外景致,讓空間通透舒適,整體兼具功能與美觀 ;
 
企業展廳設計效果圖
 
企業展廳前臺,米白與淺木色搭配,營造出溫馨專業氛圍。前臺背景墻凸顯企業標識,強化品牌感。世界地圖與獎杯展示區,展現國際化視野與實力。二樓玻璃圍欄增添通透感,光潔瓷磚地面搭配簡約座椅,整體空間整潔大氣,兼具功能性與美觀性;
 
企業展廳設計效果圖
 
墻面上醒目的企業標識和品牌信息,不僅強化了品牌形象,還彰顯出企業的獨特魅力。玻璃圍欄的設計,增加了空間的通透感,讓人能隱約看到下方區域,增添了幾分層次感。頂部的筒燈和燈帶組合,光線柔和,照亮整個走廊,既實用又美觀。走在這樣的走廊上,滿滿的高級感,無論是員工通行還是接待訪客,都很有格調;
 
展廳裝修設計案列
 
 
墻面的展示區域,一邊是產品宣傳圖,一邊是帶有企業標識的立體木塊墻,既展示了企業的產品,又凸顯了品牌特色。天花板上的線性燈,不僅提供了充足的照明,還極具設計感。
 
黑色的皮質沙發搭配白色茶幾,沉穩大氣又舒適,旁邊的綠植為空間注入了生機。在這里稍作休息,既能感受企業的文化氛圍,又能緩解疲勞。
 
展廳裝修設計案列
 
 
走進這樣的企業展廳,首先會被其簡潔大氣的風格所吸引,明亮的空間讓人心情舒暢,沒有壓迫感。在休息區落座,舒適的沙發和溫馨的環境能有效緩解疲勞。當目光聚焦到榮譽展示區,滿滿的獎杯獎牌和國際化的背景,會讓人感受到企業的強大實力與輝煌成就,心生欽佩。而墻面展示區域的細節呈現,又能讓人深入了解企業,增強對企業的認知與信任。整體而言,這個展廳既給參觀者帶來舒適的體驗,又成功傳遞了企業的形象與文化 。
 
展廳裝修設計案列
 
走進這個企業展廳的產品展示區,第一感受是簡潔大氣。白色背景帶來干凈純粹的視覺體驗,讓人能迅速聚焦到產品上。合作品牌以特別的造型展示,仿佛在無聲訴說企業強大的伙伴陣容,給人一種可靠、值得信賴的感覺。
 
圖文與實物結合的產品展示方式,直觀又全面,讓人能輕松了解產品的功能與優勢,仿佛已經觸摸到產品的魅力。帶有企業標識的科技感畫面,不僅強化了品牌印象,還透露出企業緊跟時代潮流、富有創新精神的特質。
 
展廳裝修設計案列
 
 
大面積的落地窗引入充足自然光,窗外的綠植景觀仿佛是展廳的天然背景,讓人心情超舒暢。榮譽展示區,獎杯獎牌整齊陳列,直觀展現企業的輝煌成就,實力滿滿。
 
伙伴合作區以獨特造型展示各大合作品牌,彰顯企業強大的合作網絡。產品展示圖文結合,還有實物陳列,方便了解產品特色。無論是參觀者還是業務洽談,這里的氛圍都超合適!
 

 

95%的人都喜歡的裝修效果圖:
版權所有 © 重慶斯戴特裝飾公司
聯系QQ:452574176 聯系電話:023-65359372 項目直線:185-2394-9158 雷先生
專注于:辦公室裝修、餐飲店裝修、會所裝修、酒吧及KTV裝修、地坪漆及地膠裝飾、美容美發店裝修、影樓裝修、廠房裝修、展廳裝修歡迎咨詢!
ICP備案號:渝ICP備14005124號-3
023-65359373